Ladder Access (SS)

Galvanized ladder access roof hatches are designed to provide convenient and economical access to a building’s rooftop

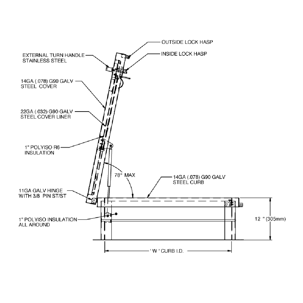
Cover:

Double-deck construction (“boxed type design”) with 1″ Polyiso (R-6) insulation and continuous EPDM foam reinforcement/weather seal packaging that attaches to the inside of the deck to provide a tight, level fit. Designed to support a live load of 40lb/ft2; The cover is 14-gauge galvanized steel with 20-gauge galvanized steel interior lining.

Curb:

14-gauge galvanized steel with 1″ thick Polyiso (R-6) insulation on the outside of the curb. The curb is 12″ tall, with a 3.375″ wide bottom flange and pre-drilled mounting holes.

Hinge:

Heavy-duty galvanized steel pivot hinges with 3/8″ stainless steel pin.

Aperture:

Gas spring operators allow the cover to open and close with ease The stainless steel inner handle allows for easy control when closing the cover.

Door Bolt:

Stainless steel self-locking exterior T-handle with interior lock assembly and stainless steel lever The unit also has provisions for interior and exterior padlock.

Finishing:

The material is prepared with a wash with iron phosphate, followed by an anti-rust primer, and then baked with gray polyester enamel paint.

Product Downloads

Ladder Access (SS)
Roof hatches and smoke vents

Specifications

STANDARD RHG SIZES

Other sizes available on request

Curb ID, LyW Weight Per Hatch
Model In(mm) lbs. (kg.)
G3232 24 x 24 (610 x 610) 125 (56.8)
G3238 24 x 30 (610 x 762) 130 (58.9)
G3244 24 X 36 (610 X 914) 135 (61.4)
G3838 30 x 30 (762 x 762) 145 (65.8)
G3844 30 x 36 (762 x 914) 155 (70.5)
G4444 36 x 36 (914 x 914) 170 (77.3)

For detailed specifications, see the presentation sheet

What is the value for you?

checkmark

Provides safe and easy access for maintenance equipment and equipment transport through the roof

checkmark

Electrically Powered Models are available

checkmark

Available in specialized models, including Polycarbonate skylights, Thermal Break designs, high load capacity options

checkmark

Meets regulatory standards for smoke evacuation in buildings

Product Features

checkmark

Standard stainless steel hardware on all hatches

checkmark

EPDM foam eraser/weatherproof sealing gaskets provide weather-tight construction

checkmark

1″ Polyiso (R-6) insulation standard on all hatches

checkmark

Supports 40 lbs./sq. ft. Live Load Feet

Conclusions:

We have locally manufactured Mexican products with a quality that you can feel confident in any construction.

Related products

Ladder Access (AL)
Ladder Access (AL)
Acceso para Equipo puerta de una hoja (SS)
Acceso para Equipo puerta de una hoja (SS)

Contact us at

Do you have any questions about our products and services?
Please ask, we are here to assist you

This site is registered on wpml.org as a development site. Switch to a production site key to remove this banner.